推荐资讯
免费咨询热线
13827261285暖通空调安装施工标准
1.适用范围
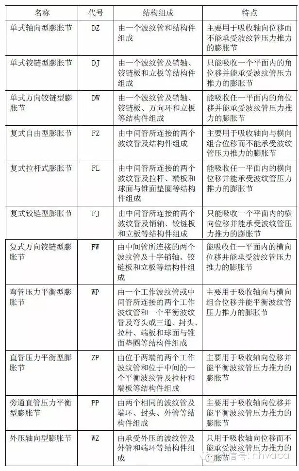
根据管道补偿方式,分为:方形(门形)补偿器;L 型和Z 型补偿器(自然补偿);填料式(套筒式)补偿器;波纹补偿器。波纹补偿器的特点是结构紧凑,占地面积小,补偿量大,适用范围广。
安装补偿器后固定支座是否需承受盲板力分约束型和非约束型补偿器。
非约束型:通用型(含减振型);外压型;小拉杆横向型;直埋型;串式通用型等。特点是固定支架承受所有受力和力矩。约束型:大拉杆横向型;角向型;角向横向型;万向角型;万向横向型;直管压力平衡型;曲管压力平衡型;旁通压力平衡型。特点是自身结构吸收盲板力,固定支架受力小。
2.金属波纹管膨胀节规格表
根据GBT12777-2008《金属波纹管膨胀节通用技术条件》。
3.实例图片
焊接管道接引样式
1.适用范围:适用焊接管道接引。
2.大样图
3.工艺要求
1)靠近设备进出口水平段上,应采用偏心大小头,安装时保持上平,防止产生气袋;
2)路过或是敷设在管桥的两侧的设备间连接管线,应“步步高”或是“步步低”,避免出现中间低或中间高的U 型,以免积液;
3)分支管线先分支后变径;分支管弯头不能直接与主管相接,应在主管上焊接50~200mm 短管,再与变径相接;
4)在管件上不得焊接支管。
5)相连位置接两条及以上分支管时,将各支管汇集后再与主管接引。
木托样式
1.适用范围:适用于制冷管道安装。
2.表格
公称直径DN(mm) | 木托的厚度(mm) | 木托宽度(mm) | 螺丝规格 | 扁铁宽度(mm) |
DN≤100 | 同保温材料的厚度 | 40 | M6 | 30 |
100<DN≤400 | 50 | M8 | 40 | |
DN>400 | 60 | M10 | 50 |
3.工艺叙述
隔热材料可选用防腐木托或树脂类材料;
防腐木托必须先浸泡于热沥青中至少八小时;
冷却水管不设木托码,只需用扁钢,或是圆钢抱箍即满足要求。
4.产品图片
卧式水泵安装
1.使用范围:适用于卧式水泵的安装。
2.大样图
水平进出水口的水泵安装,应按下列要求选择安装形式:
(1)水泵软接头一般应在水泵进出口处水平安装。
(2)因空间受限不能在水平管段上安装软接头的,建议选择U 型泵(或称羊角泵,进出口均朝上)。
(3)确需将软接头垂直安装,应按下图设置支撑。
3.工艺核心要义叙述
(1)弹簧减震适用于隔振要求比较高的场所,减震垫减震适用于一般场所;当机房设置于楼层内时,应设置浮筑基础。
(2)根据泵的不同,减震器的数量不同,一般分为4、6、8 个减震器。
(3)惰性块一般为外框为角钢焊接内浇注混凝土。惰性块的质量应不小于水泵机组的总质量,一般宜为水泵机组总质量的1.0-1.5 倍,高度为长度的1/10-1/8,且不小于150mm。
(4)橡胶减震垫可以分层叠放,中间加钢板,每层纹路错开,最高5层,橡胶减震垫的排列方式见图。
(5)镀锌钢板的平面尺寸应比橡胶隔振垫每个端部大10mm。
(6)水泵水平管段上当软接安装空间距离不够时将软接在立管上安装,并采用不同的减震方式。
(7)限位杆及限位角钢用于固定基础的位置,在调试、试运行、检修,特别是试压时,更应注意限位的作用。
(8)柴油发电机、水泵、冷水机组均可采用本安装形式。
4.注意事项
(1)水泵固定螺栓及弹簧减震器固定螺栓设置安装时,必须保障所有螺栓安装便于检修拆卸;
(2)设备过滤器检修口一定要设置在便于清洗及检修位置,方便调试过程中拆卸,更换滤网;
(3)水泵槽钢基础设置时,需要考虑预留排水孔,以便槽钢网格内积水顺利排出;
(4)水泵安装时,软接必须安装限位器,并做好限位器固定,防止设备运行时,管道压力对软接破坏;
(5)管路安装时,需要在水泵进出口阀门前设置旁通阀门,管路冲洗过程中严禁冲洗用水经过水泵,防止水泵轴被污染破坏。
5.水泵减震器计算(未考虑管道系统水压对隔振系统的影响)
公式:L=m×9.81/D
式中:L—每只减振器承载的力
m—作用在隔振支承结构上的总质量
D—减振器数量
常数:混凝土比重:2500kg/m3 1kg=9.81N
例:水泵机组重:989kg;电机功率:75KW ;转速:1450r/min;惰性块用钢量:104kg。
公式:F= m×9.81/D
m = m1+ m2+ m3
式中:m1—水泵机组重量(包括水泵电机和基架重量)
m2—动力荷载和附加重量
m3—惰性块重量
m2= m1×50%=989kg×50%=494.5kg
m3= m 水泥+ m 钢
m 水泥=L 长×L 宽×L 厚×Y 水泥(2500kg/m3)
L 长=L 底座+300mm L 宽=L 底座+300mm
注:惰性块即钢混水泥基座,它的长度和宽度应不小于水泵机组共用底座的长度和宽度,计算时一般各加上300mm,惰性块重量一般不低于水泵机组总质量的1.5 倍。计算厚度时预设整个基座全为水泥来计算基座厚度,以此算出L厚应为允许最小的厚度。即:
L 厚mix = 1.5 倍水泵总质量/Y 水泥/L 长/L 宽=1483.5kg/2500kg/m3/1.75m/0.87m =0.39m
mmix 水泥 = L 长×L 宽×L 厚mix×Y 水泥(2500kg/m3)
=1.75×0.87×0.39×2500=1484kg
m 钢总=m 螺纹钢+m 边框
=(L 长/0.15+1)×(L 宽+0.2)×4×0.888+(L 长+ L 宽)×2×(L 厚+0.06)×3×7.85=(1.75/0.15+1)×(0.87+0.2)×4×0.888+(1.75+0.87)×2×(0.39+0.06)×3×7.85=49+55=104kg
注:1.惰性块内钢筋用Φ12mm 罗纹钢,每150 双向双层排列;
2.惰性块四边用δ3mmA3 冷轧钢板护围。
m3= m 水泥+ m 钢 =1484kg+104kg=1588kg
m = m1+ m2+ m3=989+494.5+1588=3071kg
F= m×9.81/D=3071kg×9.81N/kg /6=5021N
选得6只预应力阻尼弹簧减振器,单只最佳荷载为5021N。
风管水平安装
1.适用范围:适用于各类材质风管安装;
2.大样图
3.工艺说明
1)管的连接必须平直、不扭曲。明装风管水平安装,水平度的允许偏差为3/1000,总偏差不允许大于20 ㎜;
2)风管支吊架的螺孔采用机械加工,不允许用电气焊切割。风管吊杆必须平直,螺纹完整、光洁;
3)风管接口的连接必须严密、牢固。风管法兰的垫片材质要符合系统功能的要求,厚度不能小于3㎜。垫片不允许凸入管内,或突出法兰外;
4)水平风管安装时要遵循先上后下、先干管后支管的原则。水平弯管在500mm 范围内应设置一个支架,支管距干管1200mm 范围内应设置一个支架;
5)当水平悬吊的风管长度超过20m 时,应设置防晃支架,每个支管不应少于一个。支管距离三通位置应在1200mm 范围内设一个支架;
6)风管安装后,支、吊架受力应均匀,且无明显变形,吊架的横担挠度应小于9mm;
7)风管保温不加设垫木,只需在支架处加白铁皮(宽度比支架所使用的角钢大,长度与保温面齐,优点是保证保温材料的连续性,减少保温封闭时的薄弱点)支架处的白铁皮可以和支架或橡塑保温同色;
8)尺寸标准
风管在最大允许安装距离下,吊架的最小规格应符合下表规定[参见薄钢板法兰风管制作与安装(国家建筑标准设计图集) 07K133
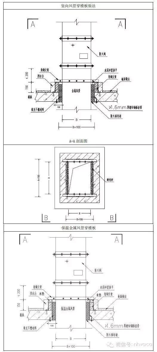
风管穿墙、穿楼板安装
1.风管穿墙安装
1.1 适用范围
根据GB50243 中6.2.1 规定,在风管穿过需要封闭的防火、防暴的墙体或楼板时,应设预埋管或防护套管,其钢板厚度不应小于1.6mm。风管与防护套管之间,应用不燃且对人体无危害的柔性材料封堵。非上述隔墙可不设防护套管。
1.2 大样图
1.3 工艺说明
1)钢套管和封堵材料应与完成面平齐;明装风管套管表面采用如上图所示得防火板封堵做法;
2)风管吊架采用双螺母锁定,螺杆露出螺杆为2~3 扣;
3)水平风管穿墙或伸缩缝预留洞口加设1.6mm 以上钢板套管,套管内填充不然材料。风管穿墙处套管表面加设防火板封堵,在防火板四角用膨胀螺栓固定于墙体上。防火板尺寸最少大于预留洞口50mm;
4)风管及防火阀支吊架的螺孔采用机械加工;
5)本内容参见高层民用建筑设计防火规范GB50045-95(2005年版);
2.风管穿楼板安装
2.1 大样图
2.2 工艺说明
1)竖风管穿楼板处加设挡水台,挡水台建筑做法参照设计要求。其中穿设备层、机房、出屋面楼板需做地面防水。对于成排风管穿楼板,采用一个整体挡水台。风管一边靠墙体的情况,挡水台只考虑除剪力墙的其他方向。
2)竖风管穿楼板,风管角钢支架支腿需包进建筑挡水台内固定在楼板上。
3)竖风管穿楼板预留洞加设钢板套管,套管内填充不然材料。风管穿楼
板处楼板下方加设防火板封堵,在防火板四角用膨胀螺栓固定于楼板下方。
防火板尺寸最少大于预留洞口50mm。
4)本内容参见高层民用建筑设计防火规范GB50045-95(2005年版);
5)尺寸标准
风管长边尺寸(mm) | 角钢规格 | 连接螺栓 | 通丝拉杆 |
≤ 630 | L30*3 | M6 | φ8 |
≤ 1250 | L40*4 | M8 | φ8 |
> 1250 | L50*5 | M10 | φ10 |
注:边长大于2500mm的风管支吊架应按设计规定。
角钢法兰及填料安装
1.适用范围
适用于通风与空调工程中采用角钢法兰连接的风管角钢法兰及填料安装。
2.大样图
3.采购要求
明确角钢规格、螺栓规格、填料材质及厚度。
4.工艺要求
1)角钢法兰的螺孔大小与排列应一致,采用机械开孔;螺栓应均匀拧紧,螺母应在同一侧。
2)法兰填料厚度宜为3~5 mm。
3)输送温度低于70℃的空气选用A 型接法,可用橡胶板、闭孔海棉橡胶板、密封胶带或其他闭孔弹性材料,推荐选用单面粘型PEF板;
4)防、排烟系统或输送温度高于70℃的空气或烟气选用B 型接法,采用耐热橡胶板或不燃的耐温、防火材料,推荐选用特氟龙8501。
5)法兰填料不应凸入管内,也不宜突出法兰外。
6)如设计对法兰填料材料及安装有特别规定的,按设计要求施工。
7)风管参数
风口安装
室外入口及风管柔性短管安装
1、适用范围
室外风机入口处理;
风管连接设备及穿越结构变形处的柔性短管安装。
2、大样图
3.工艺要求
1)如设计对室外入口及风管柔性短管安装有特别规定的,按设计要求施工。
2)当风机安装于室外时,电机应有防雨措施。
3)室外入口处大面积钢网应采取加固措施。
4)钢网扁铁压条的宽度与角钢法兰一致,厚度为3mm,钢网不得凸出。
5)防排烟系统风管柔性短管材质应符合防火规定(不能将有防火要求的柔性短管用普通帆布裁剪刷防火漆的方法来替代),其他系统软接可采用普通材质。
6)设计无要求时,柔性短管的长度为150mm~300mm;设于结构变形缝的柔性短管长度宜为变形缝的宽度加100mm 及以上,其连接处应严密、牢固可靠。
7)柔性短管不得作为找正、找平的异径连接管。
8)柔性短管的安装,应松紧适度,无明显扭曲。
9)常用的几种防火软接材质:四氟乙烯硅酸钛金防火软风管(强度好,价格较贵)、玻纤防火软风管(强度差但价格便宜)、玻纤硅胶防火风管(强度稍好,价格居中),在实际工程应用中,应根据不同的工程性质,用途选择不同的防火材质;
4.采购要求
1)钢网为6-7 目。
2)柔性短管可按工程需要采购成品或半成品自制加工。
3)分为防排烟系统和一般通风系统两种不同材质采购。
上一篇: 没有了!
下一篇: ABS价格:ABS市场行情走弱?
相关新闻
- 中央空调风口如何选择 24-03-22
- 新风系统的【通风软管】要怎样选择? 24-06-17
- 新风口,回风口,出风口你知道怎么选购吗? 24-06-17
- “ABS风口”变频中央空调与直流中央空调之前区别 24-06-17
- 住宅“铝箔软管”新风系统工程技术规程(焱丰) 24-06-17
- 中央空调风口风速资料汇总 24-06-17
- 中央空调工程出风口漏水如何解决 24-06-17
- ABS空调出风口知识全攻略? 24-06-17

